天理市二階堂上ノ庄町 売戸建て(収益物件1)
物件番号:
sh-5826
概要
| 総額 | 600万円 | ||
|---|---|---|---|
| 交通 | 近鉄天理線 二階堂駅から徒歩10分 | 所在地 | 天理市二階堂上ノ庄町 |
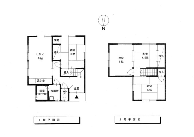
| 建物面積 | 43.06㎡ | 土地面積 | 89.20㎡ |
| タグ | |||
物件詳細情報
基本情報
| 物件名 | 天理市二階堂上ノ庄町 売戸建て(収益物件1) | ||
|---|---|---|---|
| 物件番号 | sh-5826 | 登録日 | 2025年10月09日(木) |
| タグ | |||
費用
| 総額 | 600万円 | ||
|---|---|---|---|
環境
| 交通状況 | 近鉄天理線 二階堂駅から徒歩10分 | ||
|---|---|---|---|
| 所在地 | 奈良県天理市二階堂上ノ庄町110番3 | ||
| 接道状況 | 一方 | 接道方向 | 北側の道路は私道、持分1/9あり。 |
| 駐車場 | あり | 駐車場料金 | 敷地内 |
| 周辺環境・校区 | 住宅地・二階堂小学校 | ||
状況
| 建物面積 | 43.06㎡ | 土地面積 | 89.20㎡ |
|---|---|---|---|
| 建物構造 | 木造 | 建物階数/物件階数 | 2階/ |
| 設備 | 電気、公共上下水道、プロパンガス | ||
| 築年月 | 昭和55年9月 | ||
| 都市計画 | 市街化区域 | 用途地域 | 第一種住居 |
| 地勢/地目 | 平坦/宅地 | 現況/引渡 | 居住中/相談 |
| そのほか | |||
| 取引責任者 | 西上 | 取引態様 | 一般 |









